Looking for extra room for that annoying aunt? Starting your side hustle? Or just want to scale up your existing dwelling?

We can help size it up and get going.

Whatever the reason for your residential house planning in Gold Coast, Logan or Scenic Rim, our planning consultants can help you. Whether you're looking for extra room for that annoying aunt, starting your side hustle, or just want to scale up by building a secondary dwelling, we can size it up and get going. We'll work with you to figure out the best way to utilize the space you have and make your residential planning dreams a reality.

Planning is the key to success when it comes for you to making your dream home a reality. So whether you're looking for a cozy bungalow or a grand estate, we've got you covered. Consider these factors carefully in building a secondary dwelling and plan accordingly so that everything falls into place seamlessly without any hiccups or surprises!

So don't wait - call us today, and let's get started.


WORONGARY, QLD

GRANNY FLAT
Town planning approval for a Secondary Dwelling (Granny Flat) which gave the owners a separate living space for their mother.

 
 
 

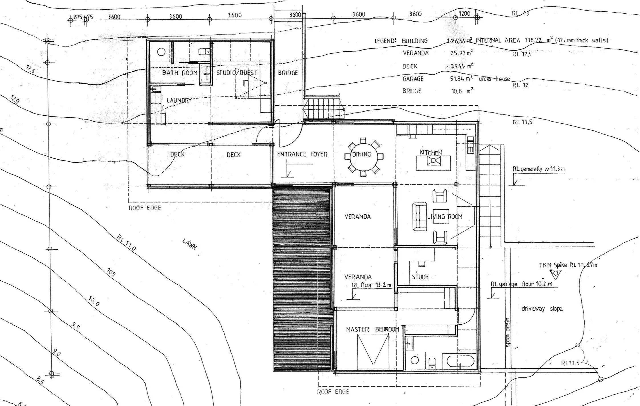
TALLEBUDGERA VALLEY, QLD

DWELLING HOUSE 
Planning advice and compliance for a luxury hilltop home.

MERMAID BEACH, QLD 

DWELLING HOUSE
Development approval for a luxury home (Impact Assessment for additional height).

BIGGERA WATERS, QLD

DUPLEX
Town planning approval for a Dual Occupancy (Duplex) located on just 506 sqm in the Low Density Residential Zone. Material Change of Use (Impact Assessable).

LOWER BEECHMONT, QLD

HOME BUSINESS (MICRO DISTILLERY)
Town Planning approval for a Home Based Business to help some entrepreneurs get started on their Gin Distillery.